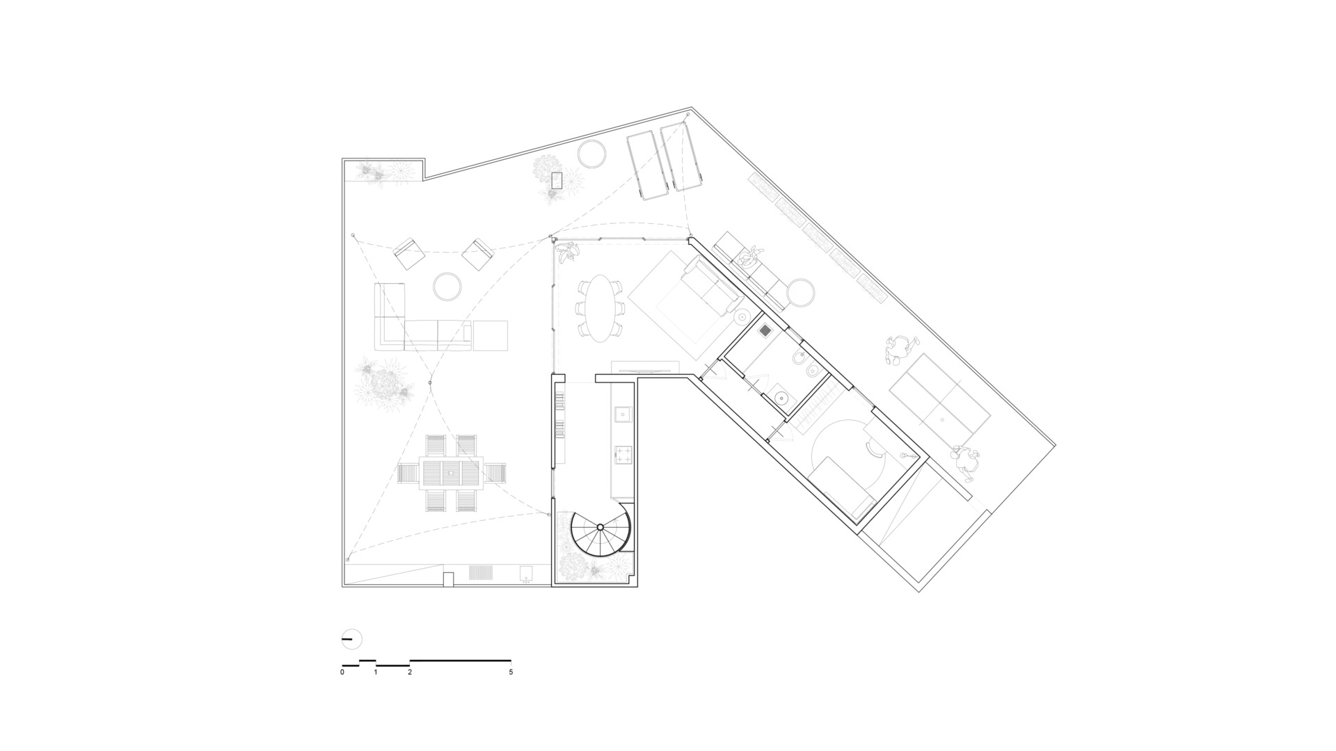
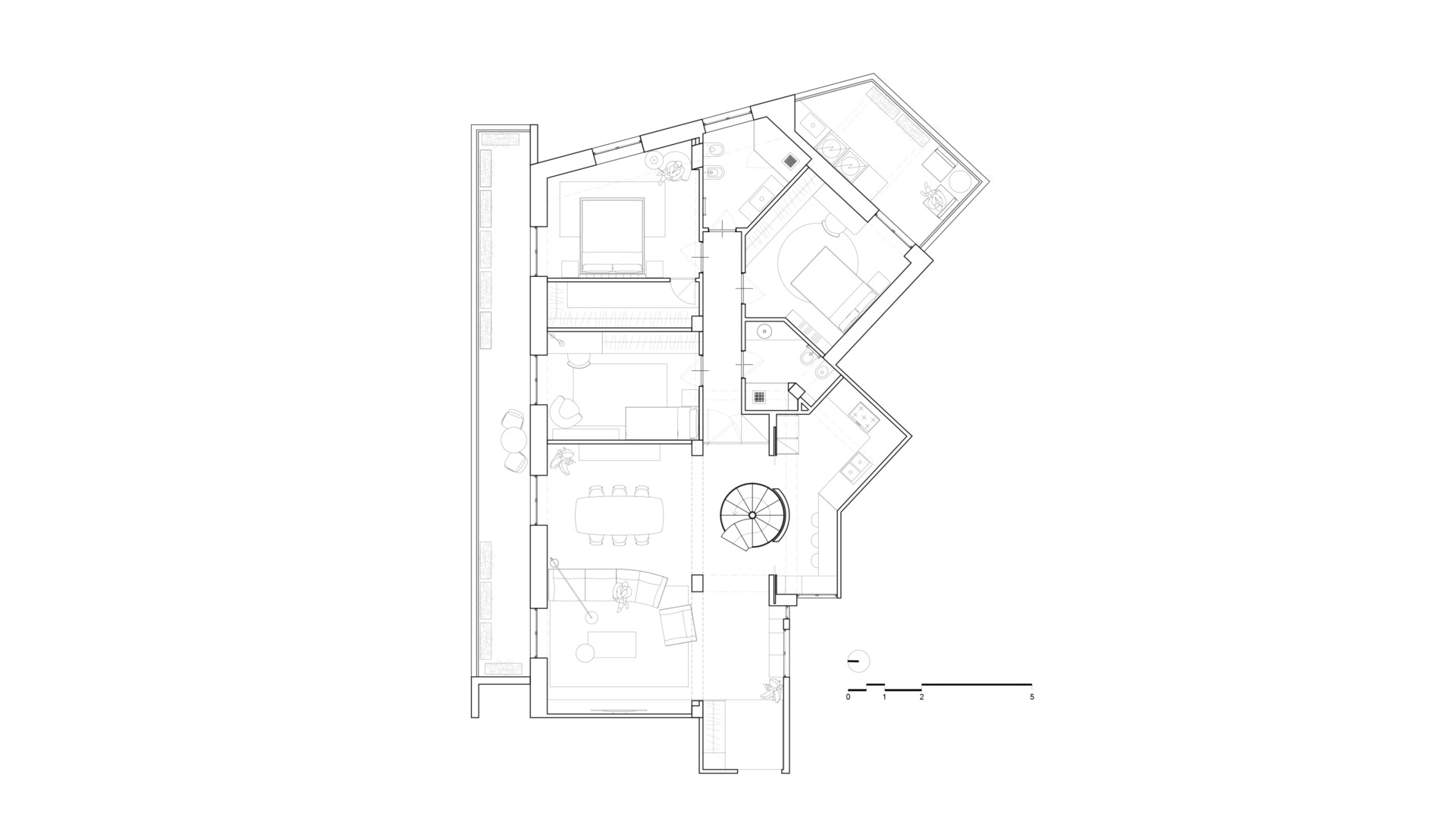
Monserrato Apartment (COPY) (COPY)
Home
Projects
Studio
Process
Contacts
EN
EN
/
IT
IT
Typology
Residential
Location
Rome,
Italy
Year
2025
Team
Raffaele Caruso
Lucrezia Crespi
Chiara Zazzini
Mauro Loreti
« Go back